SE Woodward Street
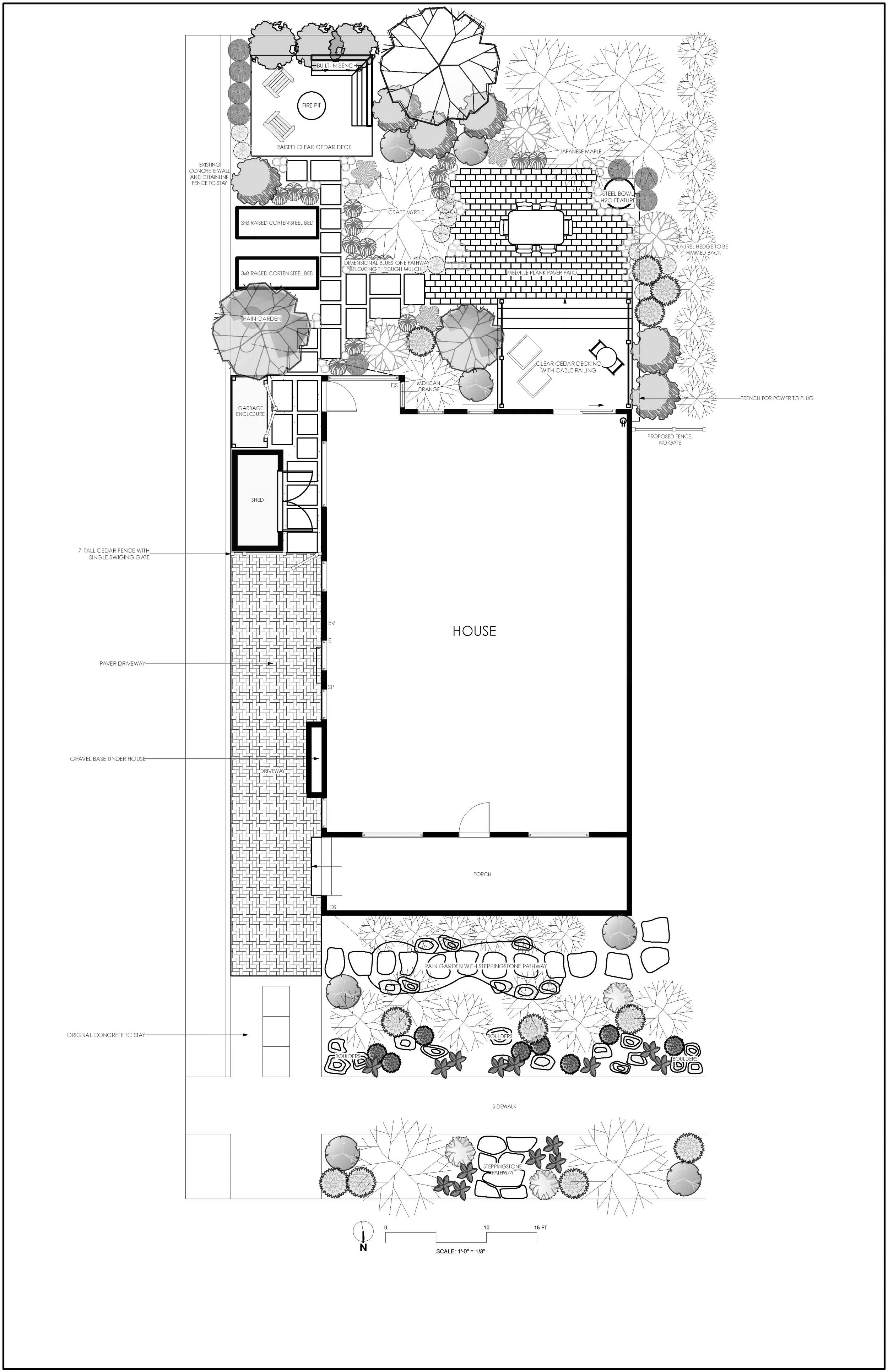
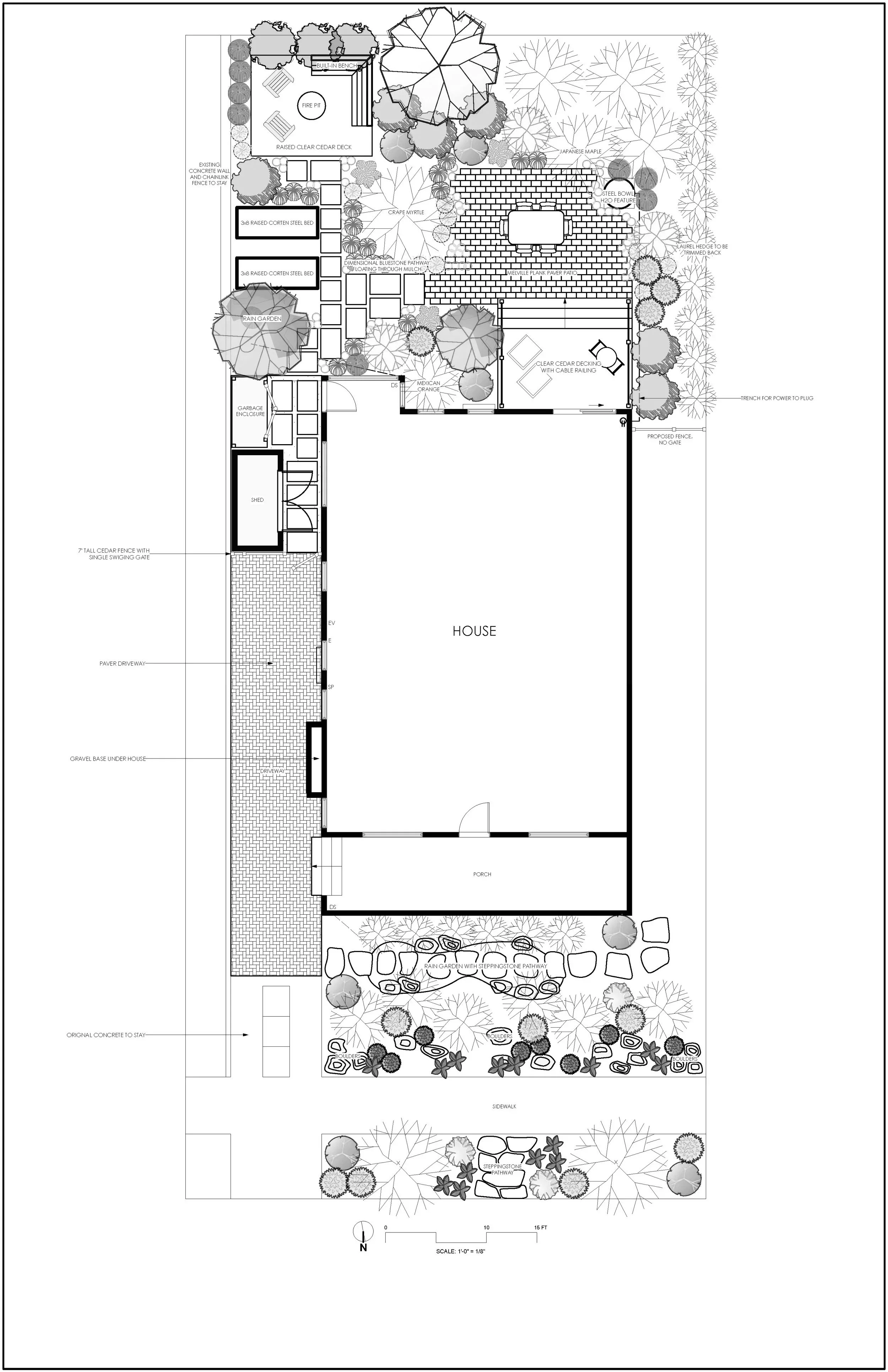
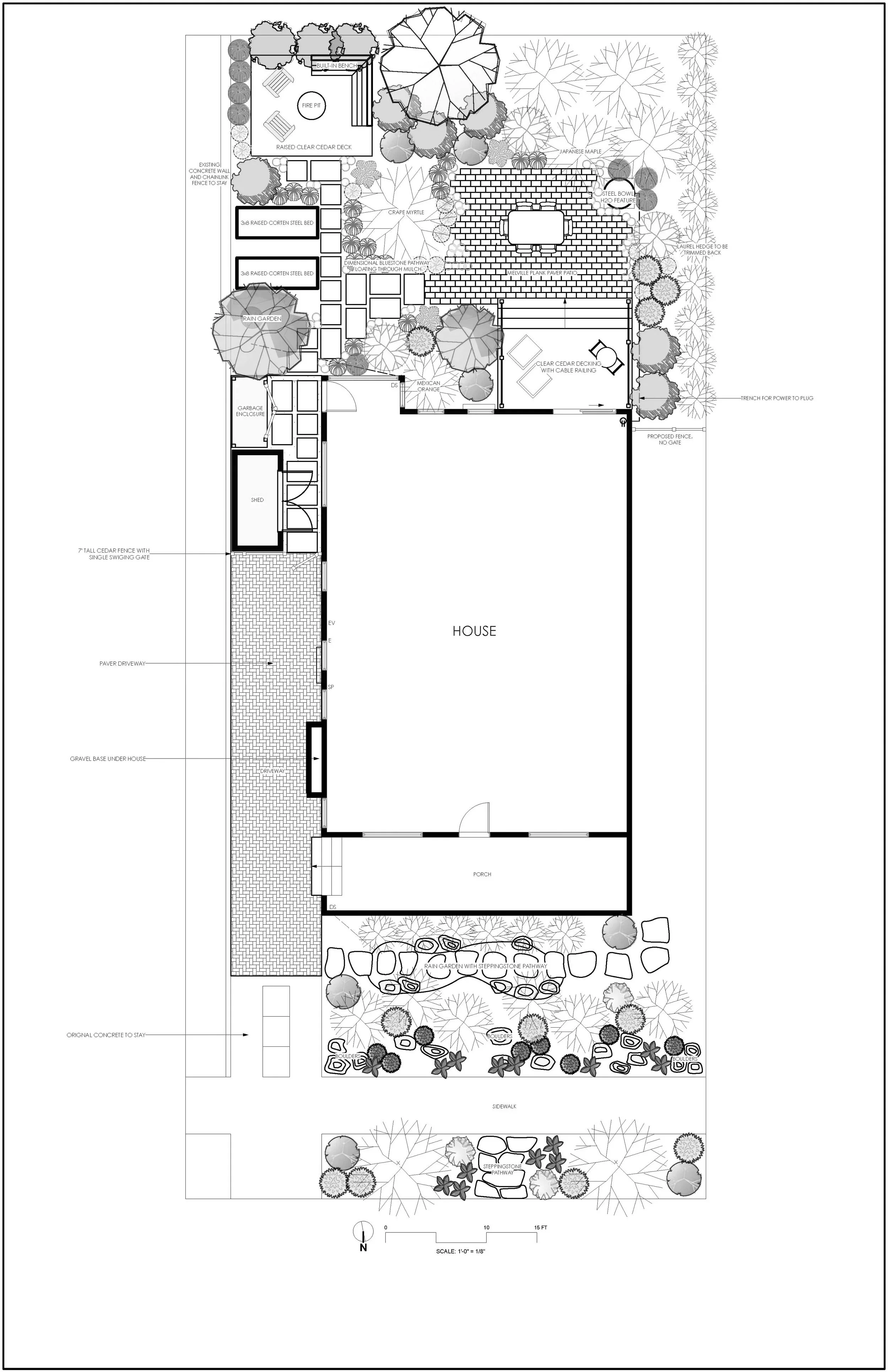
This SE Portland project was every landscaper’s dream. The homeowners had a big vision for a full-property makeover. They wanted more usable space in their backyard for dining, entertaining and relaxing by a fire pit under the stars. We created a multi-use, functional landscape design that created different options for their leisurely activities.
You enter through a striking ipe gate with a colorful stained-glass transom that leads you down a modern pathway into the back yard. There you find a beautiful raised ipe deck for sunbathing and morning coffee and a unique, modern plank paver patio for dining with friends. A rustic gravel patio and contemporary steel raised bed garden enhance the fire pit.