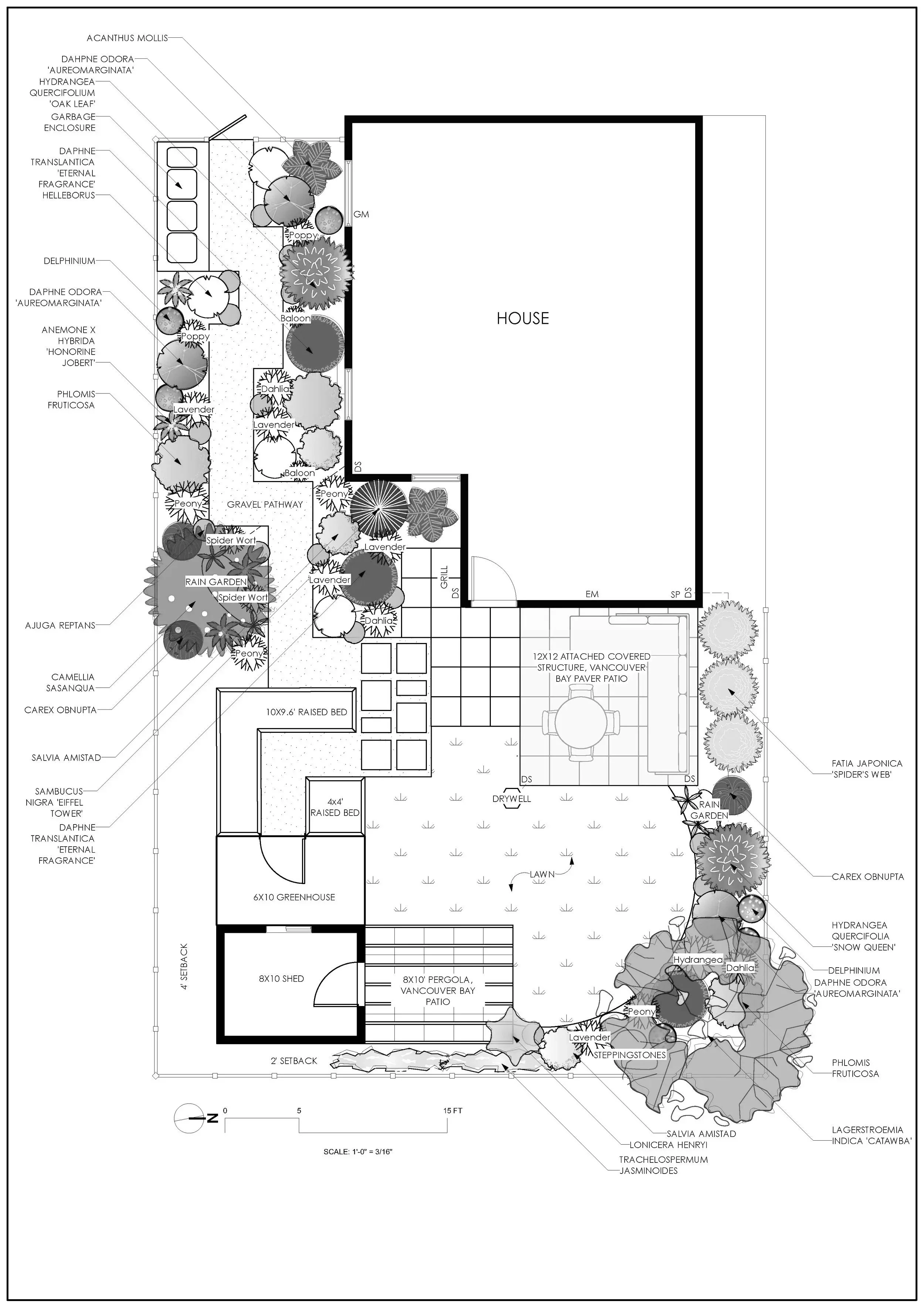
NE 32ND PLACE
Like many early 1900s homes in Southeast Portland, this house was built on a very small lot that posed a landscape design challenge. Habitat Gardens opened the space with a walkway, patio, non-crowding plants, and a beautiful rain garden for stormwater management. Flowering azara, star jasmine, hebes, and heuchera provide fragrant, year-round color.
When the home sold, however, the new owners wanted a space for intimate gatherings. To further enhance the functionality of this small yard while still handling the water drainage, we replaced the rain garden with a dry well and built this stunning bench with raised planter box. The family now has an inviting place to socialize with added privacy from bamboo.