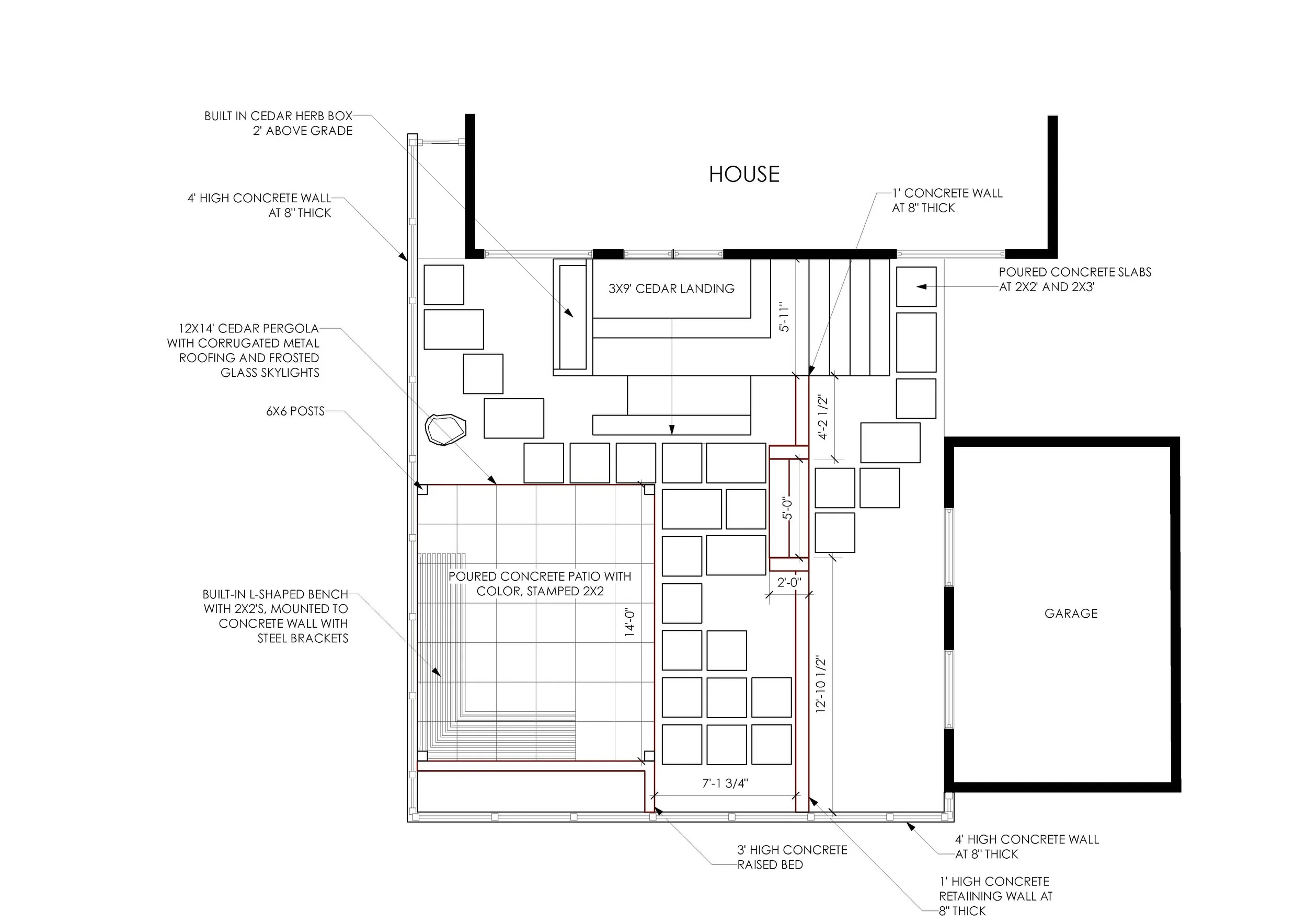
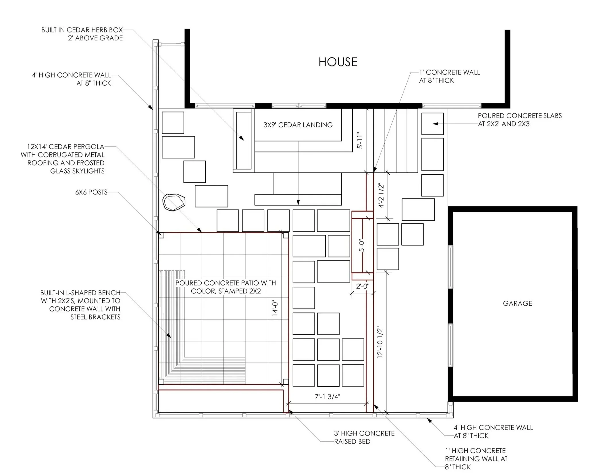
NE 22ND AVENUE
Habitat Gardens’ construction projects typically add “wow” to your landscape design. They may be central features or custom projects that solve problems, like a privacy screen to conceal your garbage bins. Trellises, fences, raised beds, pergolas, retaining walls, stairs, or a bocce ball court … we have the expertise and crew to do it all. Plus, we have a network of trusted professionals for carpentry, concrete, and construction when needed.